Espace propriétaire
fr

Votre recherche

Olonne sur Mer (85340)

3 pièces - 66,13 m²

Appartement T3 proche commerces

259 000 €
Ref : 1143c
Découvrir le bien

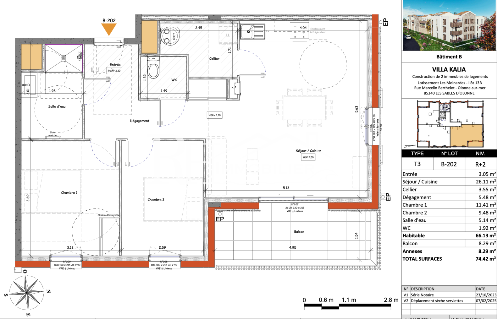
L’agence RH Immobilier vous présente cet appartement T3 d’une surface de 66,13 m².

Il se compose d’une entrée, d’un séjour lumineux avec cuisine ouverte aménagée et semi-équipée, d’un espace cellier, d’une salle d’eau, d’un WC indépendant, ainsi que de deux belles chambres, dont une avec placard aménagé.

Le logement s’ouvre également sur une belle terrasse exposée nord-est, située au 1er étage avec ascenseur d’une résidence récente, propre et sécurisée.

Vous bénéficierez en complément de deux places de parking privatives.


TRAD_ZEPHYR_Caracteristique TRAD_ZEPHYR_Valeurs
Code postal 85340
Nombre de chambre(s) 2
Nombre de pièces 3
Etage 2
Nombre de niveaux 1
Ascenseur OUI
TRAD_ZEPHYR_Caracteristique TRAD_ZEPHYR_Valeurs
Nb de salle d'eau 1
Cuisine Américaine
Type de cuisine SEMI-EQUIPEE
Mode de chauffage Electrique
Type de chauffage Convecteur
Format de chauffage Individuel
Terrasse OUI
Nombre de parking 2
Exposition Nord-Est
TRAD_ZEPHYR_Caracteristique TRAD_ZEPHYR_Valeurs
Copropriété OUI
TRAD_ZEPHYR_Caracteristique TRAD_ZEPHYR_Valeurs
Prix de vente 259 000 €
Les honoraires d'agence seront intégralement à la charge du vendeur  
DPE GES
Contacter pour ce bien
L'agence
Téléphone 07 49 15 05 67
Adresse
31 Boulevard Georges Pompidou 85800 Saint-Gilles-Croix-de-Vie

* Champ obligatoire

Les informations recueillies sur ce formulaire sont enregistrées dans un fichier informatisé par La Boite Immo agissant comme Sous-traitant du traitement pour la gestion de la clientèle/prospects de l'Agence / du Réseau qui reste Responsable du Traitement de vos Données personnelles. La base légale du traitement repose sur l'intérêt légitime de l'Agence / du Réseau. Elles sont conservées jusqu'à demande de suppression et sont destinées à l'Agence / au Réseau. Conformément à la loi « informatique et libertés », vous disposez des droits d’accès, de rectification, d’effacement, d’opposition, de limitation et de portabilité de vos données. Vous pouvez retirer votre consentement à tout moment en contactant directement l’Agence / Le Réseau. Consultez le site https://cnil.fr/fr pour plus d’informations sur vos droits. Si vous estimez, après avoir contacté l'Agence / le Réseau, que vos droits « Informatique et Libertés » ne sont pas respectés, vous pouvez adresser une réclamation à la CNIL. Nous vous informons de l’existence de la liste d'opposition au démarchage téléphonique « Bloctel », sur laquelle vous pouvez vous inscrire ici : https://www.bloctel.gouv.fr Dans le cadre de la protection des Données personnelles, nous vous invitons à ne pas inscrire de Données sensibles dans le champ de saisie libre.
Ce site est protégé par reCAPTCHA, les Politiques de Confidentialité et les Conditions d'Utilisation de Google s'appliquent.

Découvrir nos outils